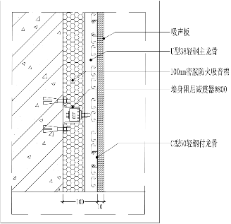
砂巖吸音板基材安裝及面層效果示意
8mm微粒環保吸聲板+2mm透聲涂料:頻率(Hz)125250500100020004000吸聲系數0.371.010.980.680.460.4915mm微粒輕質吸聲板+2mm透聲涂料:頻率(Hz)125250500100020004000吸聲系數0.580.970.770.660.590.60
產品詳情

8mm微粒環保吸聲板+2mm透聲涂料:
頻率(Hz) | 125 | 250 | 500 | 1000 | 2000 | 4000 |
吸聲系數 | 0.37 | 1.01 | 0.98 | 0.68 | 0.46 | 0.49 |
15mm微粒輕質吸聲板+2mm透聲涂料:
頻率(Hz) | 125 | 250 | 500 | 1000 | 2000 | 4000 |
吸聲系數 | 0.58 | 0.97 | 0.77 | 0.66 | 0.59 | 0.60 |






